Richmond Town Diaries
Location: Bangalore
Typology: Series of workshops & heritage walks
Project size: 2 month engagement. Supported by India
Foundation for the arts
Year of completion: 2018
Team: Ar. Sharanya
Initiated in response to India Foundation for the Arts’ Project 560, 'Richmond Town Diaries' aimed to foster deeper emotional connections between children and their neighbourhood landscapes. Led by principal architect Sharanya Iyer, the project engaged ten mothers and their 8 to 9-year-old children through walks, interviews, and sketches exploring Richmond Town.
The outcome was a child-led heritage walk complemented by five art installations highlighting colonial bungalows, parks, markets, religious sites, and iconic eateries. This initiative redefines heritage as a living, layered experience—intimately local and guided by young voices.
Down To Earth
Location: Bangalore
Typology: Series of workshops & site visits
Project size: 2 month engagement. with 50+ children visiting site
Year of completion: 2018
Team: Ar. Sharanya
'Down to Earth' is a hands-on workshop series introducing children aged 8–10 to the basics of natural building. Through site visits and guided activities, participants explore soil types, colors, and landforms, developing a tactile understanding of earth and materiality.
A live demonstration of COBB construction enabled over 45 children to mix and mould 18-inch thick walls, learning by touch, play, and experimentation. This immersive experience sparks curiosity about sustainable living—deeply rooted in nature yet embracing modern possibilities.
Restoring Melukote Panchakalyani
Location: Melukote
Typology: Masterplanning & Historic Documentation
Project size: Documentation drawings, details, masterplan and provision of amenities 12 Acre site
Year of completion: 2019
Team: Ar. Sharanya Ar. Bhargavi S
The restoration of Melukote Panchakalyani, a sacred stepped well at the foothills of Yoganarasimha Swami Temple, was part of a broader conservation and tourism initiative. Revered as the most important of Melukote’s Ashtatirthas, the well holds deep religious and cultural significance, serving as a backdrop for daily rituals and festive gatherings.
Our conservation work focused on reviving the water body and restoring the mandapas, shrines, steps, and gateways, while maintaining accessibility for pilgrims. Combining architectural restoration with watershed management and crowd-flow planning, the project reclaims the Panchakalyani as a living ritual space—rooted in history yet vital for present-day devotion.
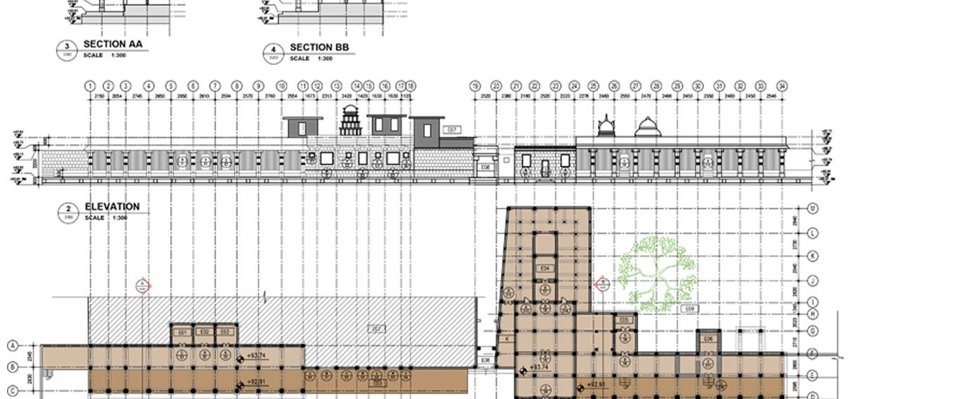
Nandibetta Masterplan
Location: Nandi Hills, Chikaballapur
Typology: Masterplanning & Historic Documentation
Project size: 97 Acre Tourism Masterplan, 6 Acre Entry Plaza
Year of completion: 2019
Team: Ar. Sharanya Ar. Bhargavi S
The master plan for Nandi Hills focuses on enhancing this popular retreat while preserving its heritage and natural landscape. It addresses crowd management, heritage conservation, and environmental impact mitigation, ensuring a balanced approach to development. Essential amenities such as seating, lighting, and signage are thoughtfully integrated to support visitor comfort.
Key zones including the entry plaza, visitor plaza, and Yoganandi plaza are designed to improve accessibility and enrich the visitor experience. The detailed design for the entry plaza is underway, aiming to create a welcoming, sustainable space that harmonizes with the hill’s unique character and ecology.
































































